Hier entstehen in Mainz 12.000 Quadratmeter Grünfläche

Bauarbeiten bis Frühsommer 2025

Hier entstehen in Mainz 12.000 Quadratmeter Grünfläche

Im Neubaugebiet Heiligkreuz-Viertel in Weisenau starten in dieser Woche an mehreren Stellen die ersten Ausbauarbeiten für Frei- und Grünflächen. Das teilen die Mainzer Stadtwerke mit.

Insgesamt werden bis Frühsommer 2025 mehr als 12.000 Quadratmeter Grünflächen und mehrere Spielplätze entstehen – das entspricht etwa der Fläche von eineinhalb Fußballfeldern. Laut den Stadtwerken werden insgesamt 116 Bäume neu gepflanzt, 45 davon auf dem Spielplatz Vogelhecke. Dieser sei etwa 1250 Quadratmeter groß und liege in der Nähe der Haupteinfahrt zum Wohngebiet an der Hechtsheimer Straße. Dort wird es dann unter anderem eine Schaukel, ein Baumhaus und eine Kletteranlage geben.

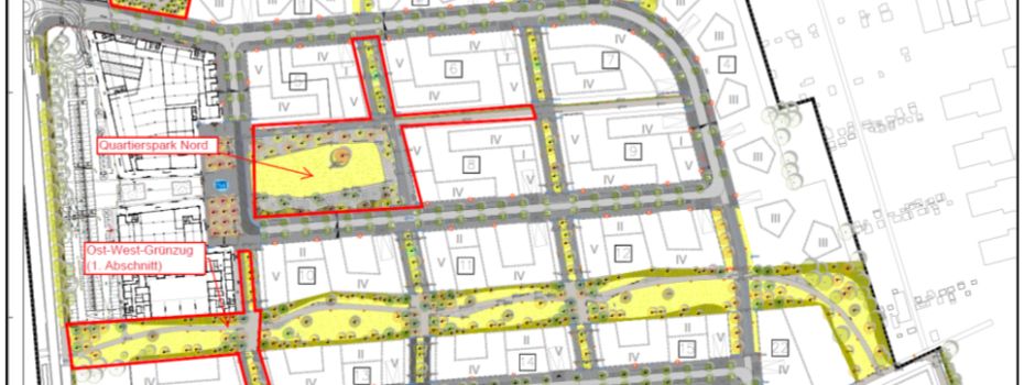
Etwas weiter südlich liegt der Quartiersplatz Nord. Hier sollen auf dem 4400 Quadratmeter großen Areal Sträucher, Rasenflächen und 39 Bäume gepflanzt werden. Für Kinder soll es ab Mitte 2025 unter anderem ein Volleyball-Feld, eine Wasser-Matsch-Anlage, ein wogendes Schiff, Kletterstämme, eine Hängemattenanlage und eine Mikado-Wippe geben.

Zusätzlich wird der erste Abschnitt des Ost-West-Grünzuges zwischen der Annemarie-Renger-Straße 3 und der Walter-Hallstein-Straße 14 ausgebaut. Hier entstehen Geh- und Radwege sowie weitere Rasenflächen und Bäume.